Drawings

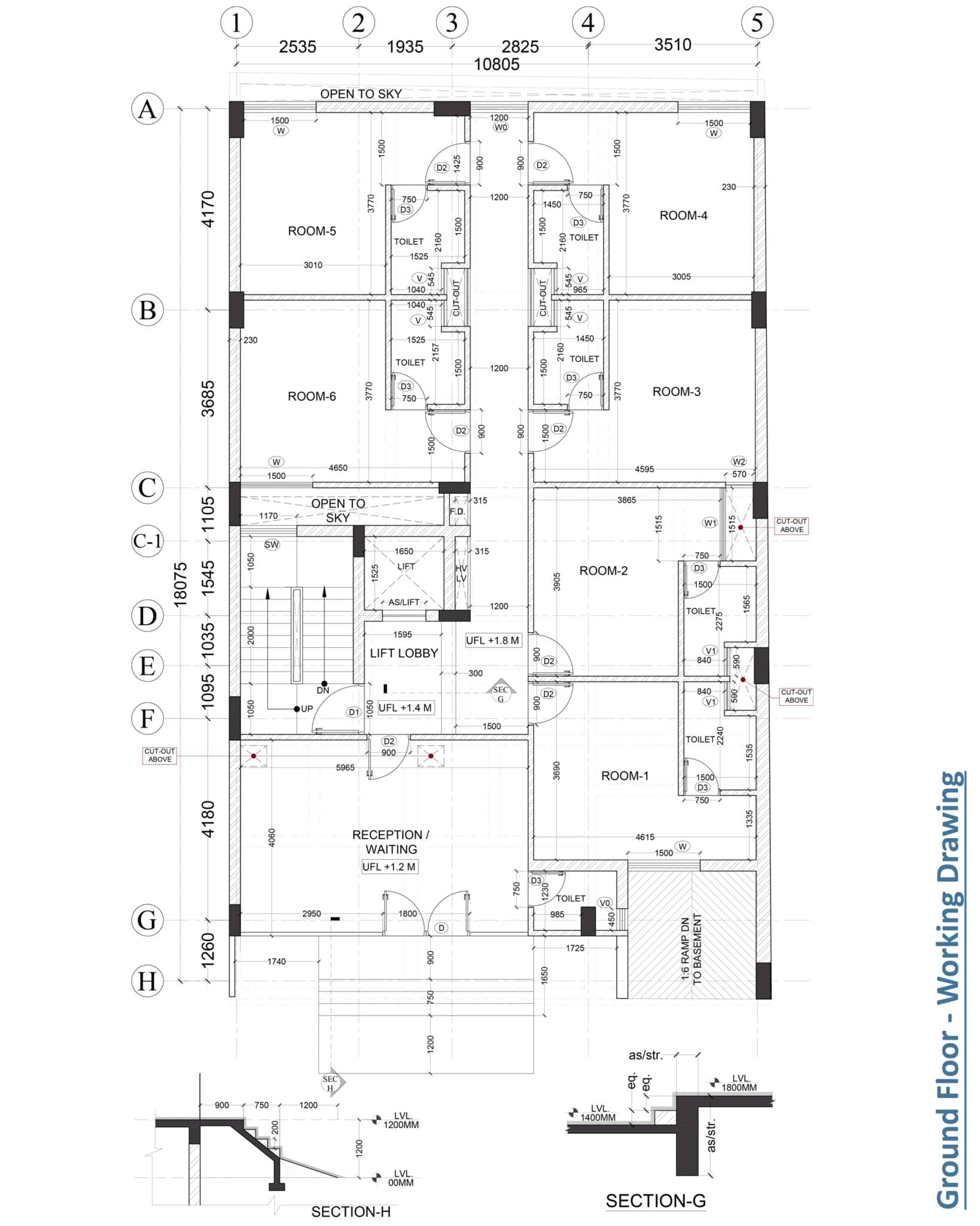
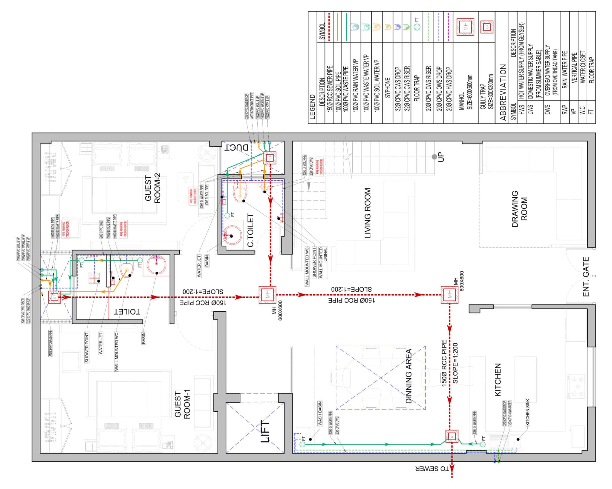
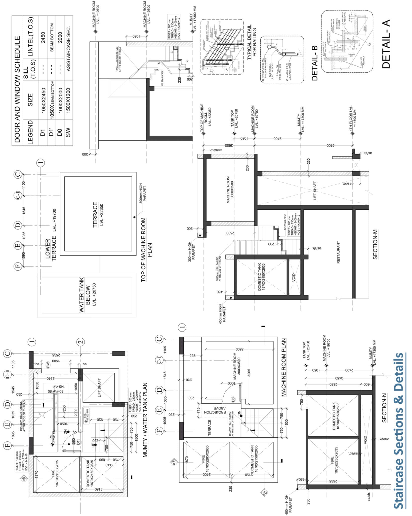
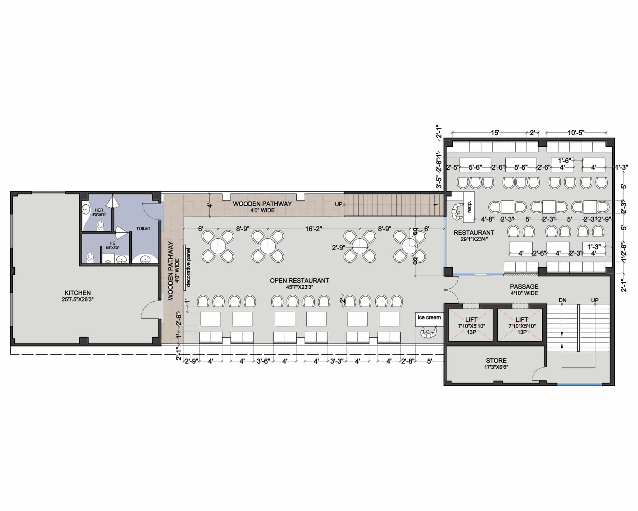
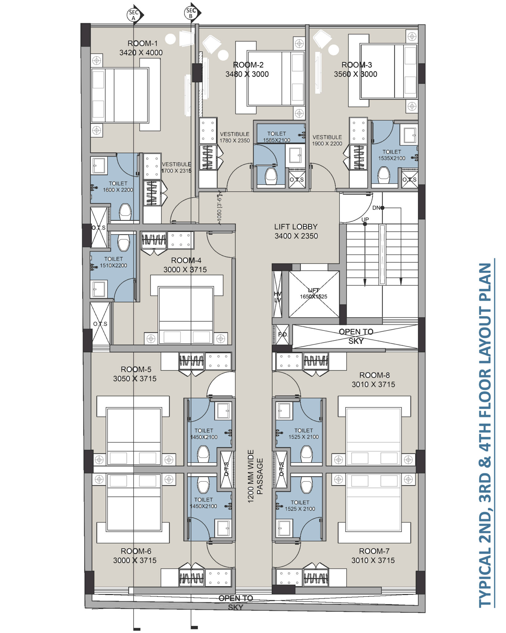
Floor Plans
























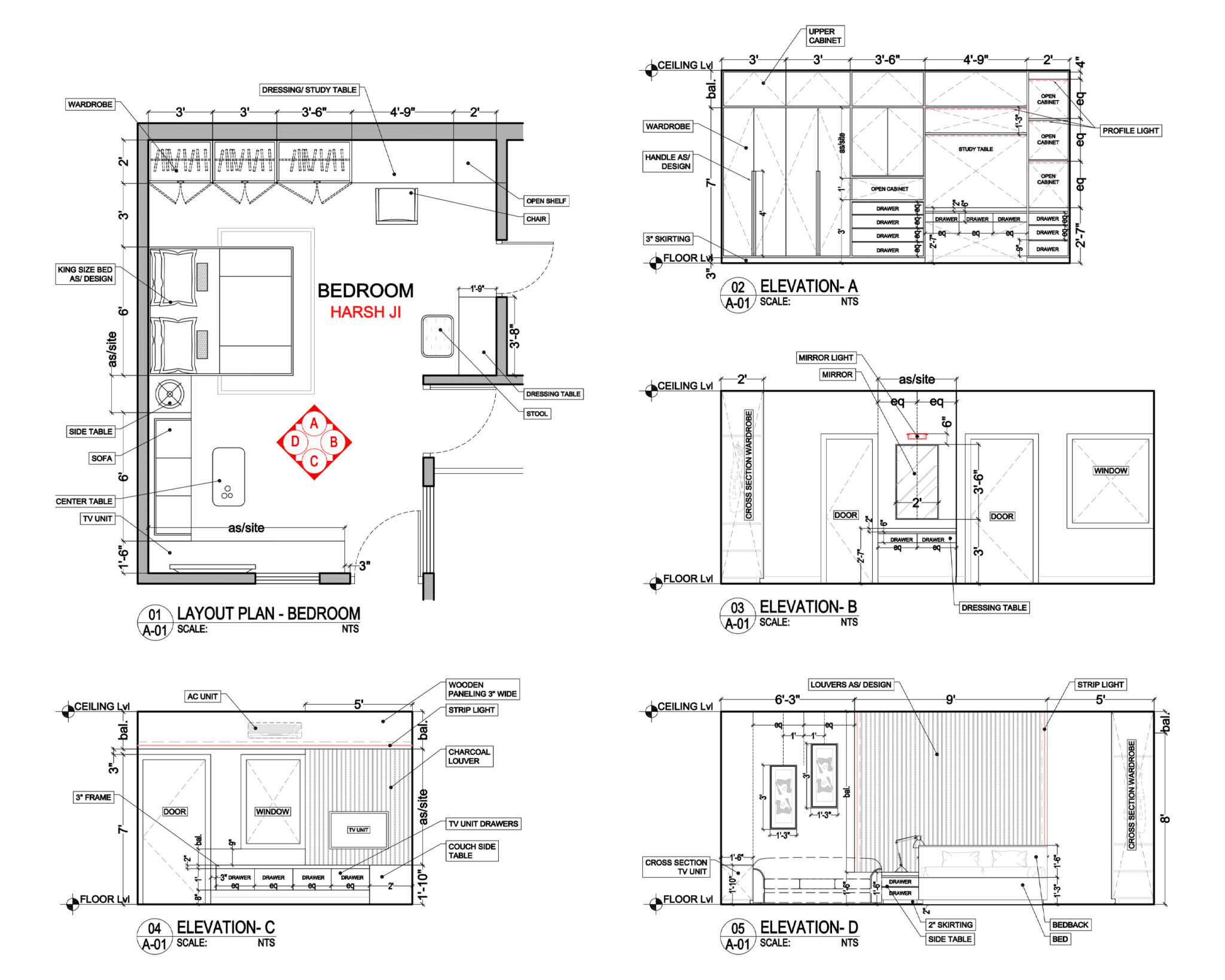
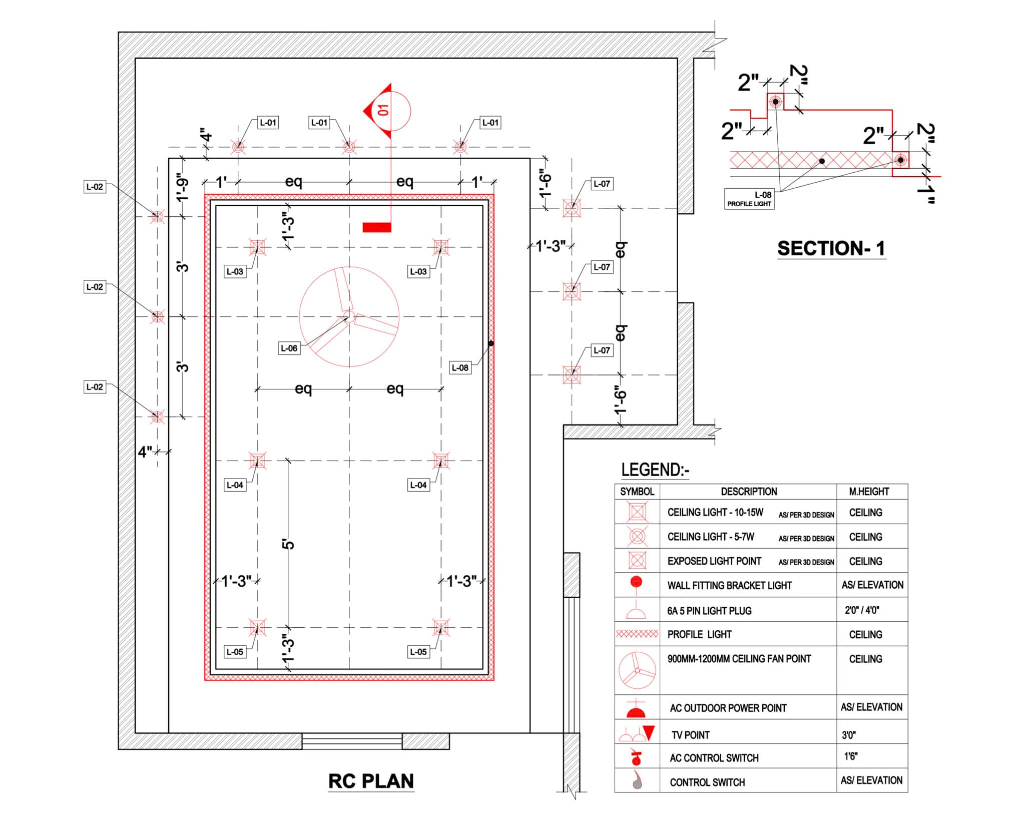
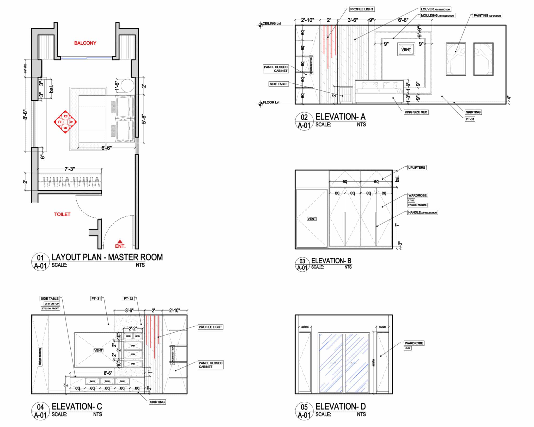
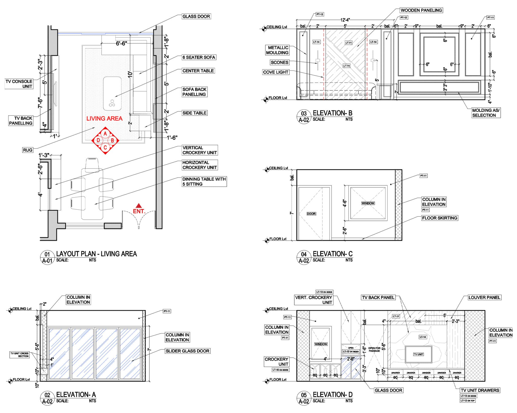
Interier Working
























Interier Documentation Package








































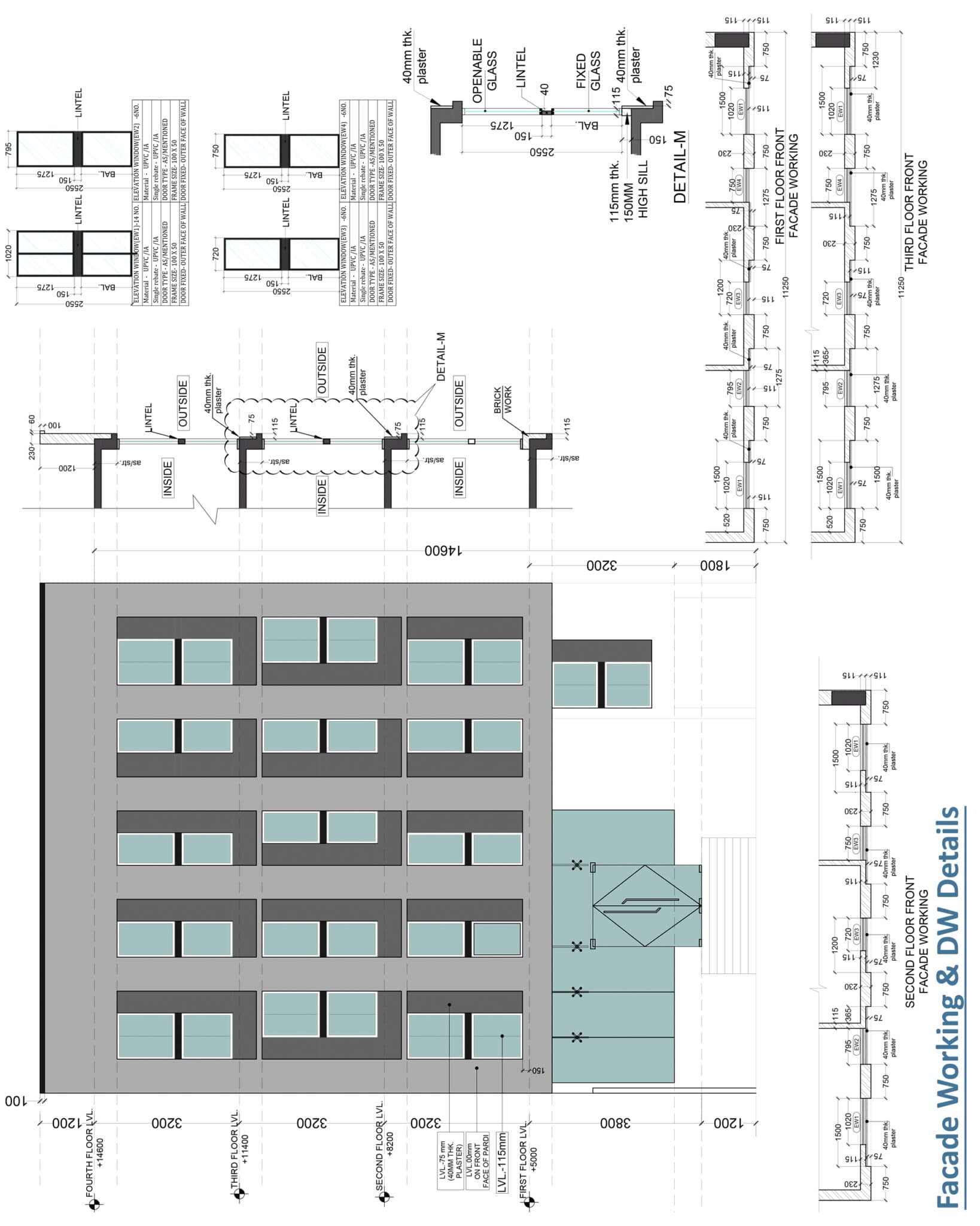
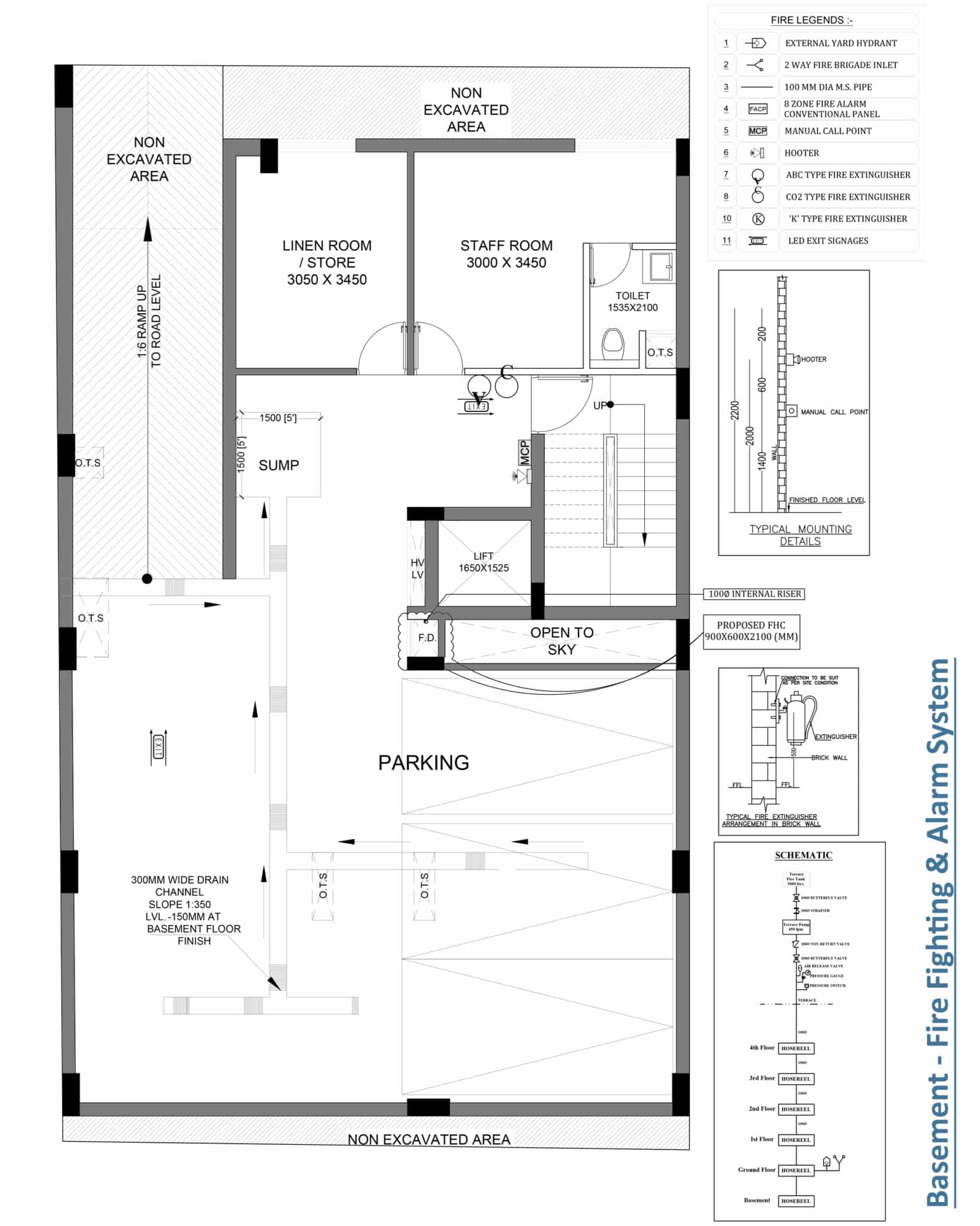
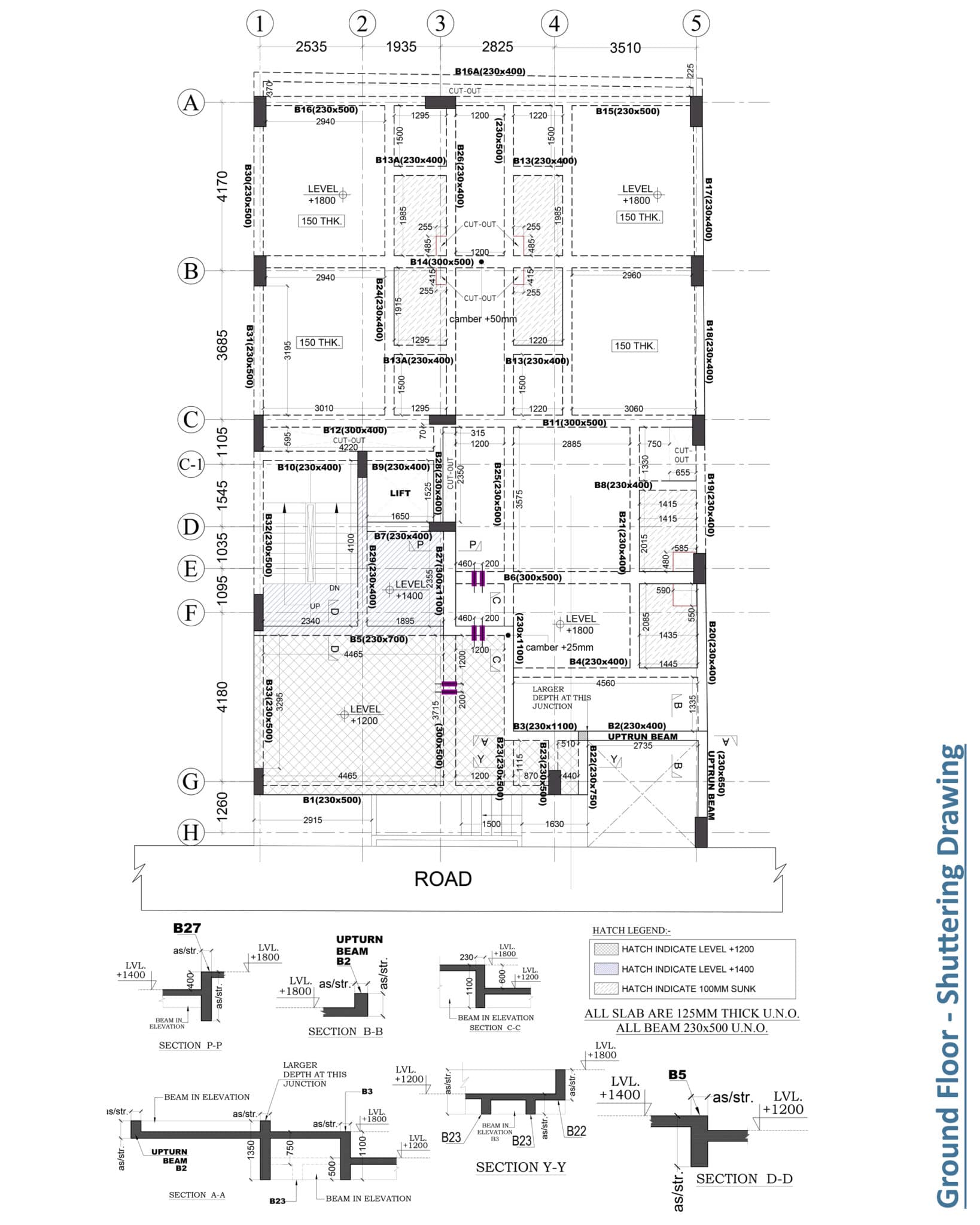
Architectural – Civil Working
































Get Free Quotation