Project Name : Clinic
Area : Doctors Cabin
Drawing : Table Details
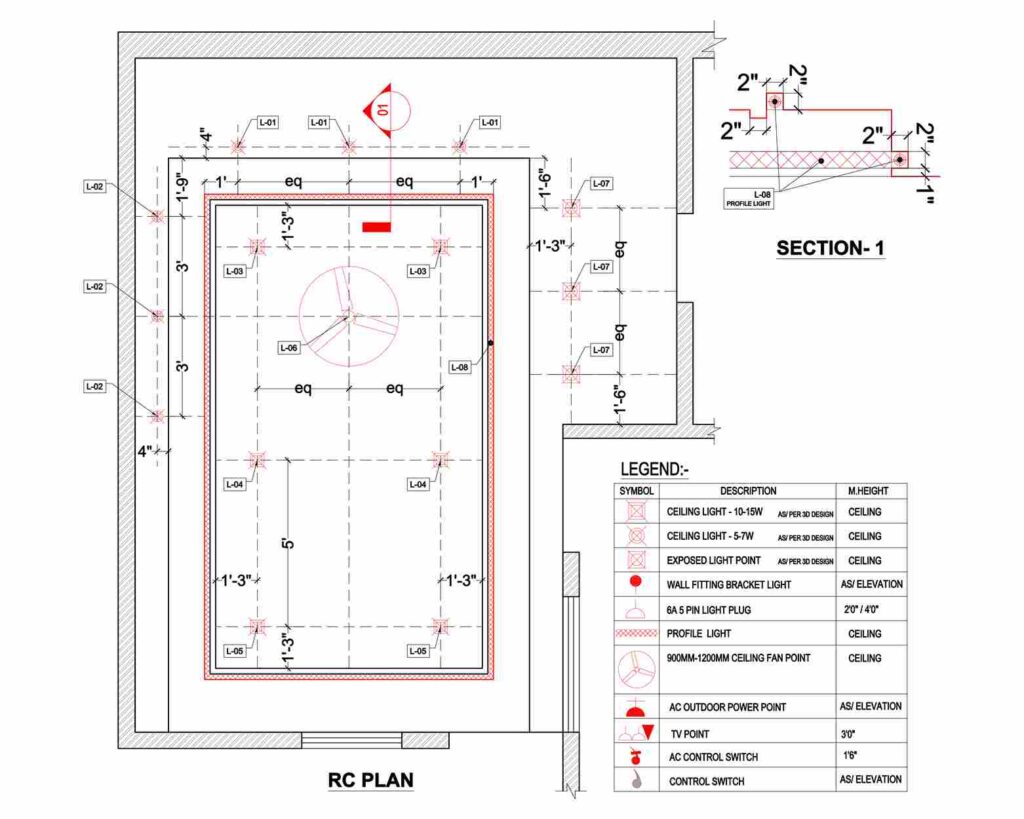
Project Name : Residence
Area : Bedroom
Drawing : False Ceiling Details
Project Name : clinic
Area : Reception & Waiting
Drawing : Electrical Details
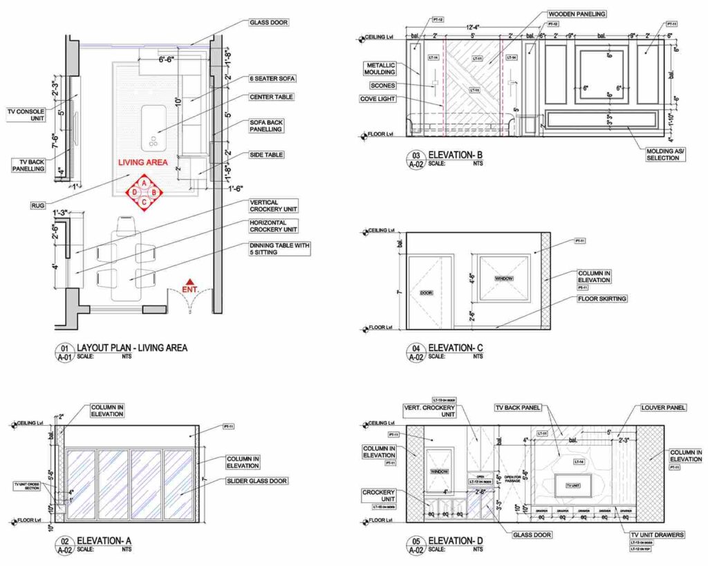
Project Name : Residence
Area : Living Area
Drawing : Walls/ Elevation Details
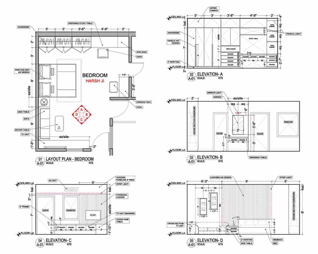
Project Name : Residence
Area : Bedroom
Drawing : Walls/ Elevation Details
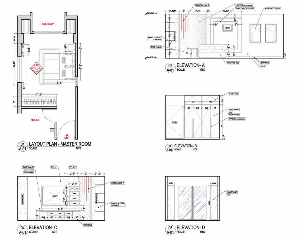
Project Name : Residence
Area : Bedroom
Drawing : Walls/ Elevation Details
Interior Designing Starting From ₹25/Sqtf*
Interior Designing Will Include All 3D Renders & Workings As Per Your Requirement
Book Your Appointment
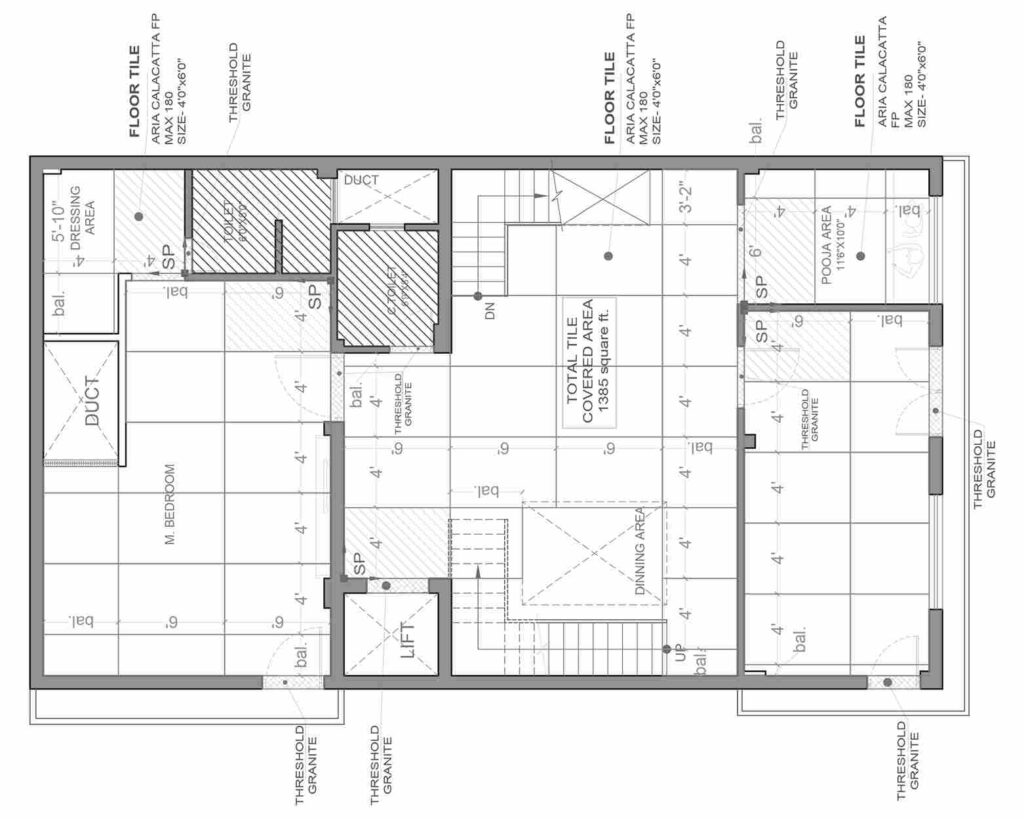
Project Name : Residence
Area : Party Hall
Drawing : Tile Setting Details
Project Name : Clinic
Area : reception
Drawing : Reception Table Details
Project Name : Residence
Project Name : Pooja
Drawing : Walls/ Elevation Details
Project Name : Residence
Project Name : Bedroom
Drawing : False Ceiling Details
Interior Designing Starting From ₹25/Sqtf*