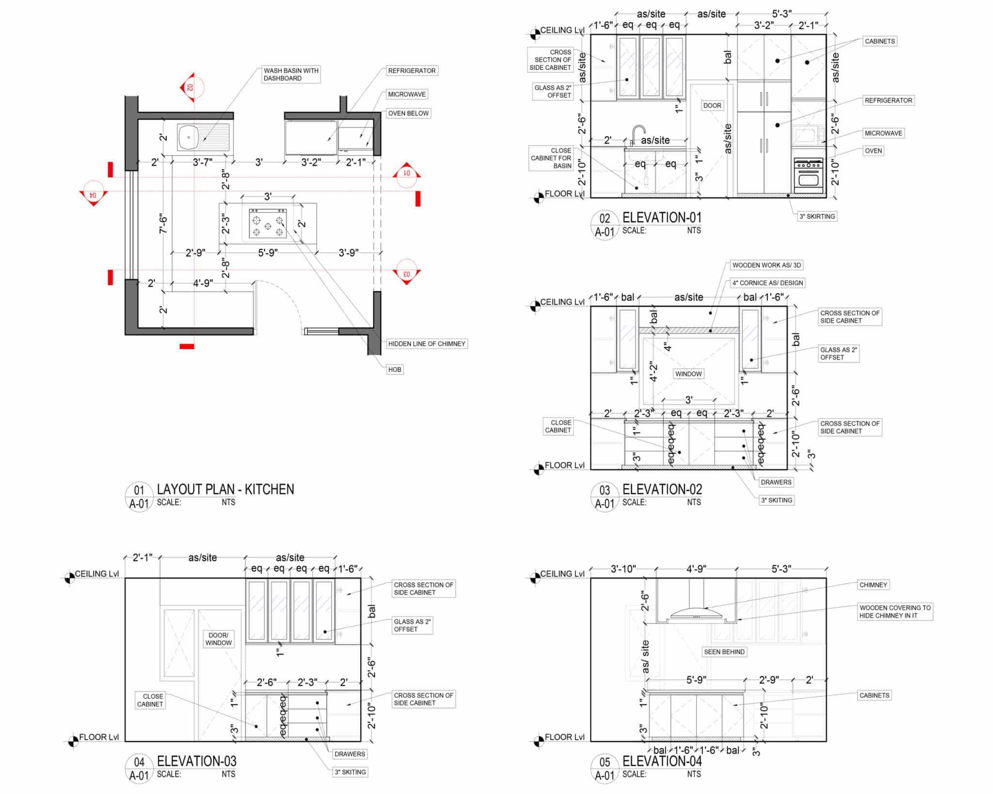
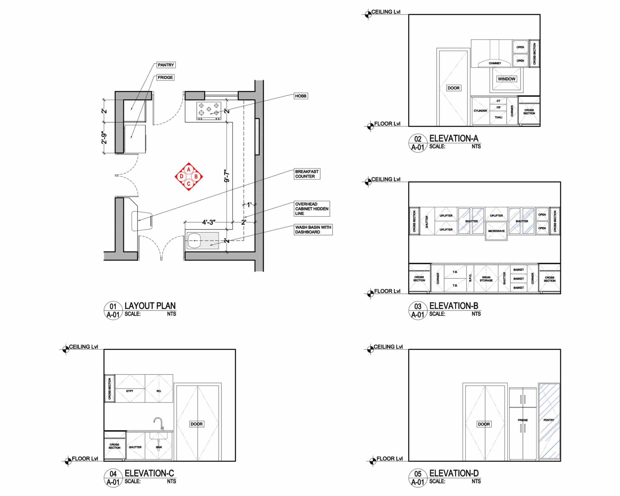
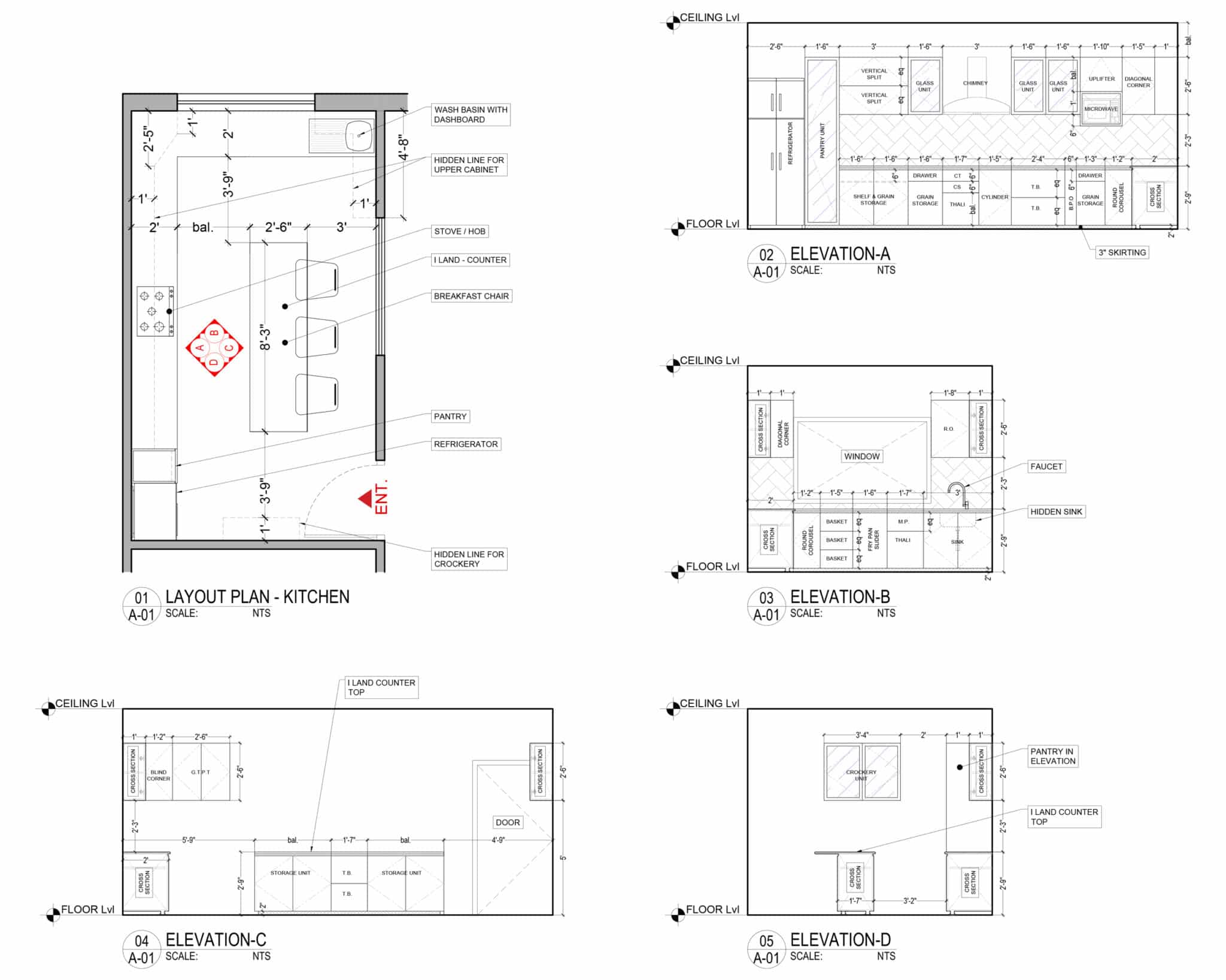
Modular Kitchen

Kitchen
















Drawings










Get Free Quotation